PROGRAM_ Residential
CLIENT_ T.Garrick
AREA_ 650 SQM
STATUS_ Complete
CONTRACT_ Architecture, Interior
CREDITS_ Assoc. C.Huang, Assoc. K.Ma with 77 Studio
The project is an example of the conscious use of unique natural characteristics. The horizontal massing block almost grows into the green slope, it also establishes a dialogue with the waterway, which becomes an important point of reference.
From the plot on which it has been built, there is a picturesque view of the river and the plains stretching to the horizon. It is these unique features of the surroundings that inspired the clients to choose this place for its construction.
ARTEC decided to subtly integrate the block of the building into the natural shape of the escarpment.
The individual levels of the house, like earth layers, penetrate the structure of the escarpment, becoming almost invisible from the opposite side of the quay.
It seems that they disappear under the hunched fold of the land. The block blends into the surroundings and becomes barely noticeable from the street and neighboring buildings, providing the residents with a sense of intimacy.
The building mass and architecture does not compete with the landscape.
It interacts with it, sometimes blending in with the surroundings, other times discreetly giving way to it.
Nature surrounds the building from all sides and even goes up its slope to the roof with a natural garden, from where there is a wide view of the whole area. Everything in the house seems to be subordinated to an unobstructed view.
The block of the residence stretches panoramically along the water-edge-line and opens with a large glazing.
And here the most difficult condition seemed to have been achieved, the infinity pool adjacent to the living room and bedroom, from the perspective of the interior, merged completely with the waterway located a little ways below.
This methodology, the effect of the final connection of architecture with the existing landscape was achieved, to create the immediate proximity to the water’s edge.
And seemingly to almost penetrate inside the house. In addition, the terrace protruding towards the waterway, surrounded by the pool water, was suspended in space like a wooden bridge.
The building’s layout was formed in the shape of letter C, creating a sheltered, secluded zone, necessary due to strong gusts of wind occurring in the open area. A patio with a fireplace was created, which is protected from rain and the scorching sun by a sail unrolled on a metal mast.
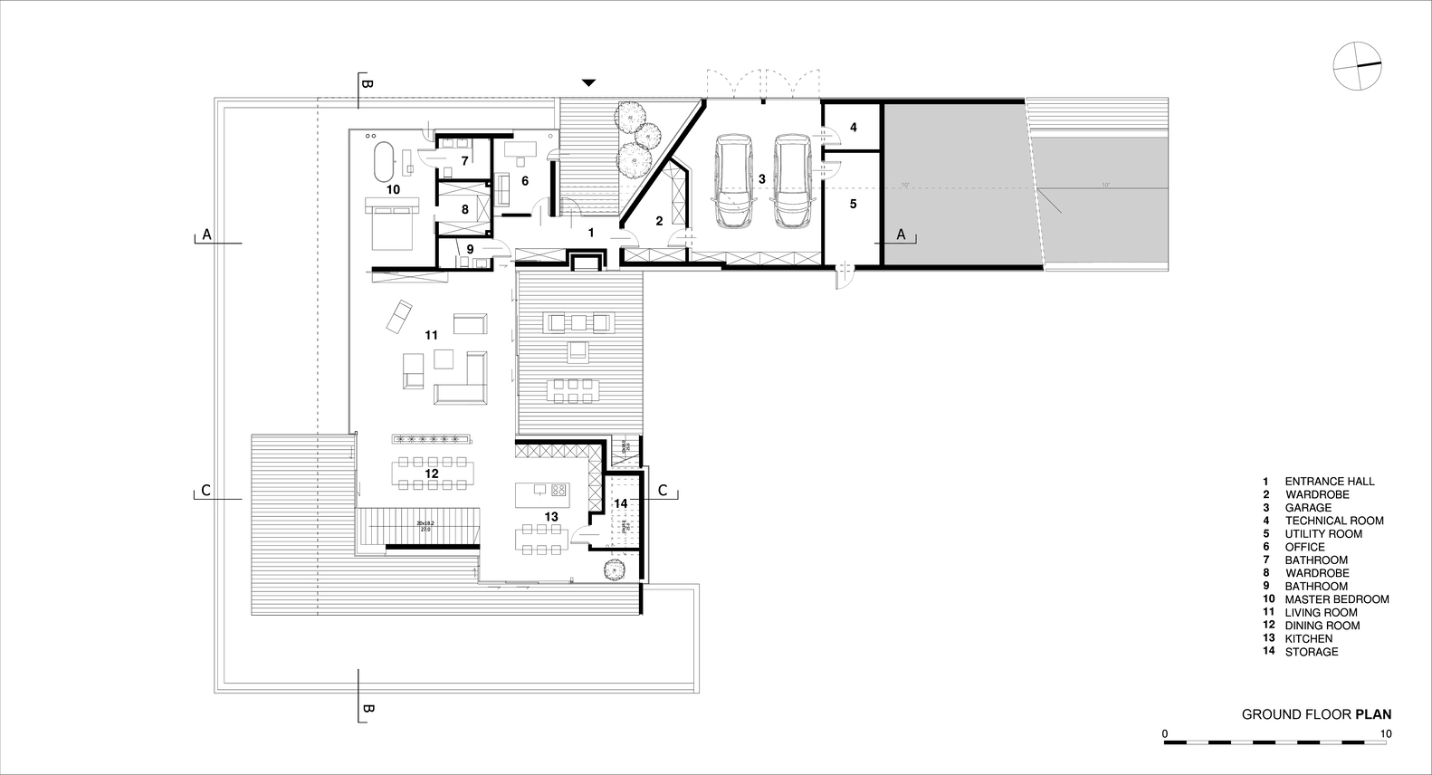
The residence has a very clear division of functions. Most of the usable rooms are located on the middle level with the best exposure to the landscape.
There is a living room with a dining area, a kitchen, a study, and a master bedroom with an open bathroom. The other rooms are located on the lowest level, with direct access to the cozy garden in the escarpment.

