ARTEC 雅术ARTEC 雅术ARTEC 雅术
  • BULLETIN 最新信息
  • SERVICES 服务项目
  • PORTFOLIO 项目组合
  • CLIENTS 客户
  • CONTACT 联系
  • AFFILIATE 附属企业

Edo Apartments

Sydney, New South Wales, Australia
  • 0 Shares Share
    0
  • 1

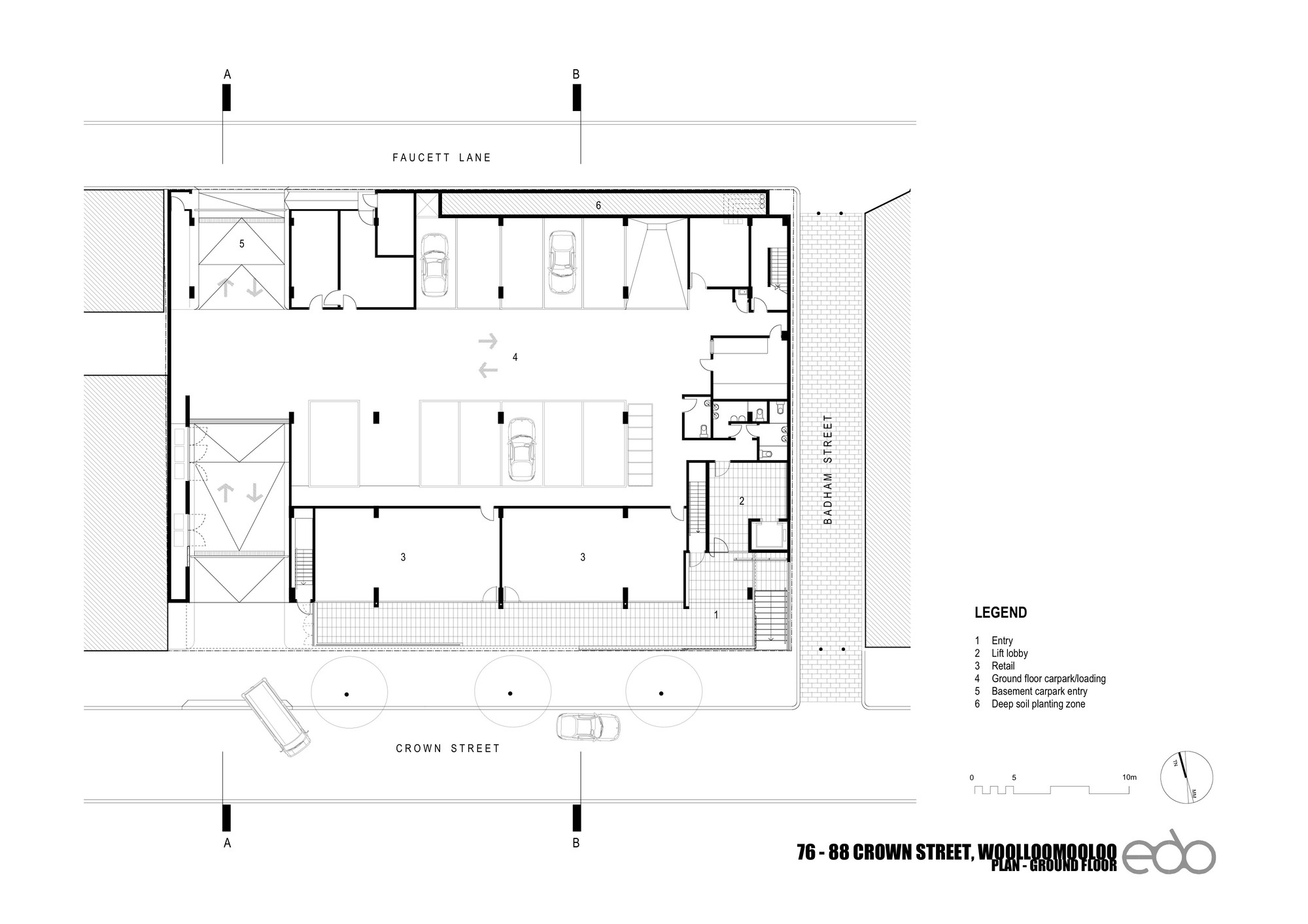
PROGRAM_ 36 Residential Apartments, Ground Hospitality & Retail
CLIENT_ AHL
AREA_ 9,900 SQM
STATUS_ Complete
CONTRACT_ Architecture, Interior
CREDITS_ Assoc. C.Huang with L3 R.Harper, A.Rheinlaender, D.Madell, Aspect Sydney

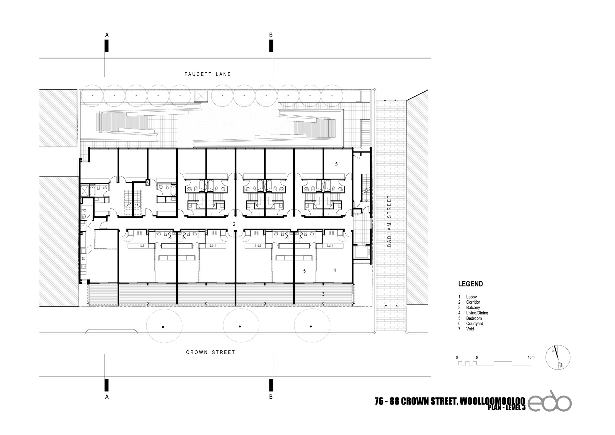
As well as being a beautifully framed space, the gallery performs an essential environmental function. Each apartment has glass louvre vents above its entry door, secured behind aluminum grilles. In summer the gallery acts as a heat sink of cool air, inducing cross flow ventilation through the apartments. Residents get airflow through the apartments without the need for air-conditioning or a fan.

The cross-flow ventilation through the apartments is induced by the lower ambient temperature of gallery, which is 15 degrees cooler than the western side of the building.

The gallery is a tempered space, a veranda between the inside and the outside. The gallery is also a social area, allowing people to mix as they come to and from their apartments and the owners’ corporation uses the space for its meetings.

The upper level apartments, which are a mix of two and three bedroom units, don’t directly access the gallery. Instead, they are accessed through a single, central cross-over corridor lined with veined, brown marble panels and slotted ceiling panels painted in a metallic finish to reflect light. The passive heating and cooling is enhanced by the interiors, with their movable screens.

Taking a cue from the sliding shoji screens of Japanese houses, bedroom walls can slide to open up apartments and change the spatial dynamic of the interior. The space is fluid and adaptable and designed for occupation rather than visitation. The edo interiors are versatile, sometimes open and sometimes partitioned. The three meter wide balconies to the western face have plantation Australian hardwood decking and are an extension of the living areas.

CHINA 中国

SHANGHAI 上海

RM. 2004, 20F
Changjiu Business Center
941 Jiaozhou Road, Putuo District
Shanghai, China, 200060

中国, 上海, 上海市, 普陀区
胶州路941号, 长久商务大厦
20楼, 2004室, 200060

AUSTRALIA 澳洲

BRISBANE 布里斯班

1F, 85 Nottingham Road
Calamvale District, Queensland
Brisbane, Australia, 4116

澳大利亞, 布里斯班, 昆士兰州
卡朗维尔区, 诺丁汉路85号
1楼, 4116

CAMBODIA 柬埔寨

PHNOM PENH 金边

RM. S10, 22F
Diamond Twin Tower
Koh Pich, Sopheak Mongkol Road
Phnom Penh, Cambodia, 12301

柬埔寨,金边,钻石岛
索菲克蒙哥路,钻石双塔
22楼, S10室, 12301

POLICY 使用政策

TERMS OF USE 使用条款

PRIVACY POLICY 隐私政策

COOKIE POLICY 互联网饼干

FRAUD PREVENTION 预防诈骗

2011 - 2026 © ARTEC / Artisan Technica Co., Ltd ( 雅术创意上海有限公司 )

  • BULLETIN 最新信息
  • SERVICES 服务项目
  • PORTFOLIO 项目组合
  • CLIENTS 客户
  • CONTACT 联系
  • AFFILIATE 附属企业

CONTACT US 联系我们

Speak with our team for the right solution for your business and investment.

请与我们的团队讨论,为您的业务和投资提供正确的解决方案。

EM : info@artisan-technica.com

 

DESIGN 雅术设计

CT : Chen Huang
LG :
EN . ZH . JP
CN :
+86 135 0193 9441
AU :
+61 422 581 790
KH : +855 81 634 577
VN :
+84 938 327 440
EM : E-Mail

VENTURES 雅术投资

CT : Akiko Hou
LG : ZH . JP
CN : +86 139 1729 5884
EM : E-Mail

COMMERCE 雅术商贸

CT : Edward Huang
LG :
ZH
KH : +855 10 510 456
EM : E-Mail